【作者】瑞兒 【來源】金艾陶【發布日期】2016/6/23
小區:徐州開元翡翠灣
戶型:F戶型
設計風格:現代時尚風格
應用瓷磚品牌:金艾陶瓷磚
本案設計理念:現代時尚風格的裝修風格迎合了現在年輕人的喜愛,現在都市的忙碌生活,我們需要一個休息的港灣!清新的家居設計,柔和的色調,舒適的設計與家具,讓人感受都市生活中的清新與放松。

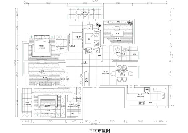
徐州開元翡翠灣F戶型圖

進門右手邊的簡約吧臺設計,讓這個空間多了一份放松的氛圍。整個空間墻面采用的是偏冷色的色調,而地面的金剛釉KYP8069的淡黃色與吧臺相呼應,增加了空間的明亮度。

黑色鏤空的木藝裝飾搭配金黃天龍KYS8086的簡單線條,簡單卻很有個性的電視背景墻,時尚感很強。筒燈散發著淡淡的白光,米色的布藝沙發散落幾個抱枕,慵懶舒適的氛圍油然而生。難得的假期,泡上一杯茶,捧著喜歡的書籍,斜靠在沙發上,是打發時間的好選擇哦!

黑色的長方形餐桌搭配條紋靠背的餐椅,墻面用黑灰的金剛釉瓷磚裝飾空間,更顯現代時尚。窗簾的那抹藍色讓整個空間增添了活力與小清新,很適合小年輕的二人世界。

該臥室的風格是現代時尚,線條簡明的臥室家具盡顯利落與大方,墻面跟地面選用了米色的金剛釉KYP8069跟灰色紋理的金黃天龍KYS8086相搭配,顯得更加時尚與大氣。